projects
products
stories
team
about
news
contact
HR
EN
ZH
Back to project
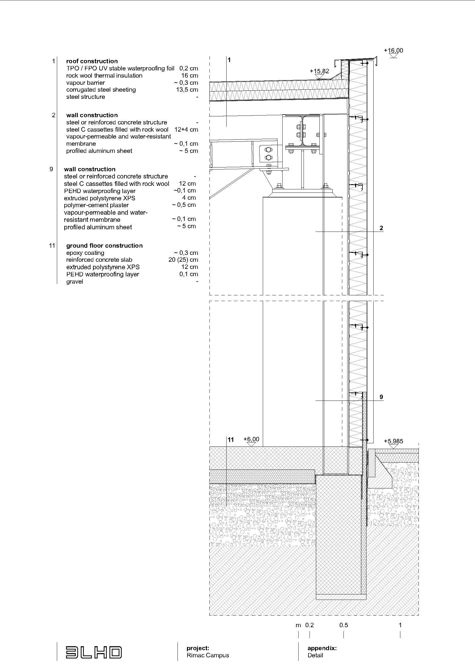
285A Rimac production facility details
Photography
Drawings
Detail drawings
Construction site
Back to top
Back to project